Zpět Zpět na výpis nemovitostí

Prodej domu rodinný 200 m² pozemek 321 m², Hamry

Stav

Realizováno

Typ

Rodinný

Obytná plocha

200 m2

Plocha pozemku

321

Velikost

4 pokoje

Stav objektu

Novostavba

1 234 567 Kč

Pohlídejte si cenu této nemovitosti Pohlídejte si cenu této nemovitosti

Sledovat dostupnost

Upozornění

Pohlídejte si změny u této nemovitosti

Dáme vám vědět, ať už se změní cena nebo stav nemovitosti.

Upozornění

O vaše data je u nás postaráno. Přečtěte si naše podmínky pro ochranu os. údajů.

Kalkulačka financování Kalkulačka financování

Spočítejte si, na kolik vás vyjde hypotéka

Spočítejte si, na kolik vás vyjde hypotéka

Spočítejte si, na kolik vás vyjde hypotéka

Nějaký zajímavý podnadpis

Více o této nemovitosti

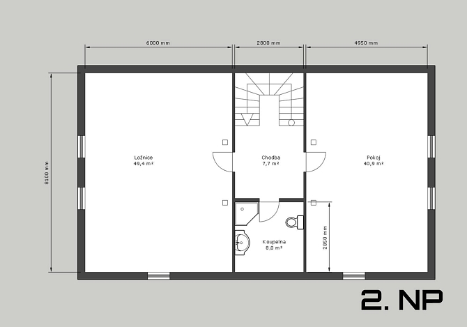
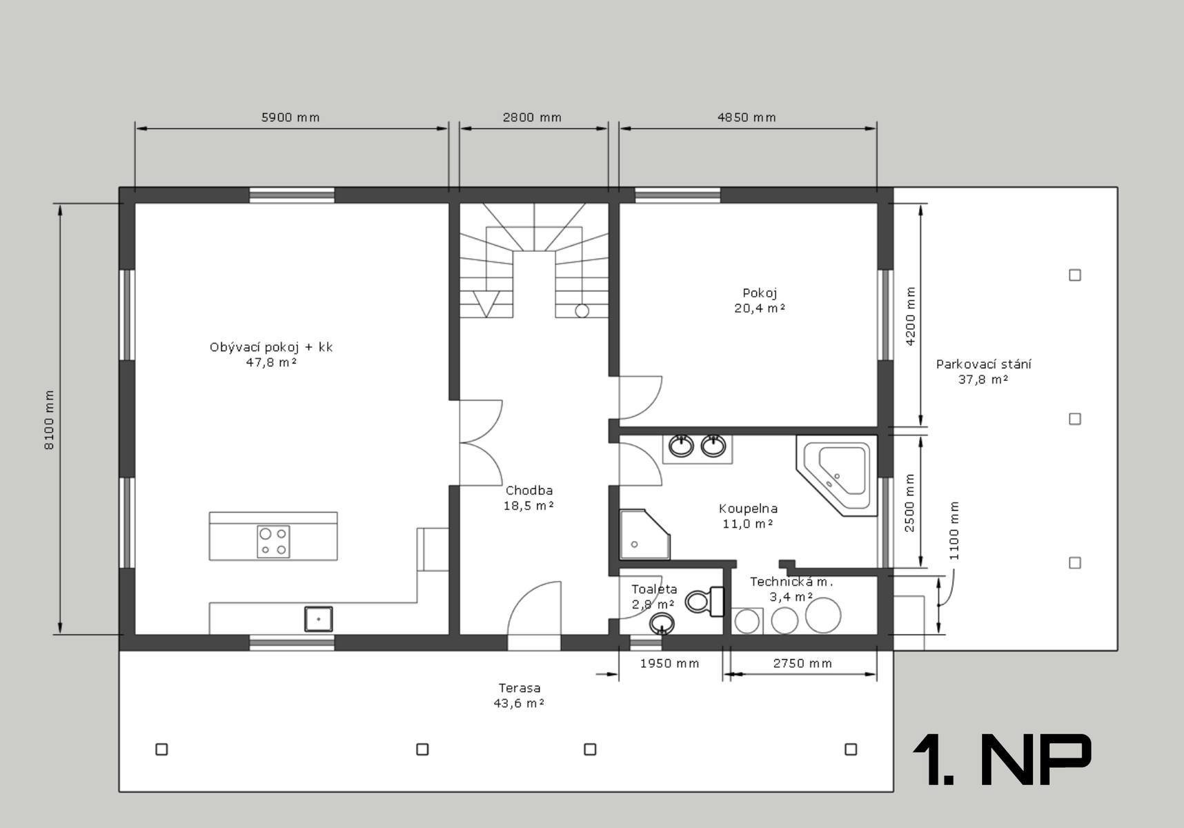
Luxusní dům po kompletní rekonstrukci – 4+kk, 200 m², PENB B

Hledáte kombinaci klidného bydlení, moderního designu a kvalitního provedení?
Pak vás jistě zaujme tento tato novostavba o dispozici 4+kk a užitné ploše 200 m², který splňuje nejvyšší nároky na komfort i energetickou úspornost (PENB B).

Dům je postaven s důrazem na kvalitu použitých materiálů a precizní zpracování. Nabízí vzdušné a světlé prostory, moderní kuchyň propojenou s obývacím pokojem, tři prostorné ložnice a dvě elegantní koupelny – zkrátka ideální místo pro rodinné bydlení nebo luxusní rekreační dům. Pozemek zde není velký - 321m2 přesto zde odparkujete 3 osobní automobily na ploše před domem, dvě na krytém stání pod střechou a zbyde dostatek místa na posezení, či malou zahrádku - bez zbytečných starostí s údržbou.

Nemovitost působí reprezentativně, a přitom útulně a pohodlně.
Díky energeticky úsporným technologiím a podlahovému vytápění napojenému na tepelné čerpadlo vás potěší i nízké provozní náklady.

Lokalita nabízí čistou přírodu, klid a soukromí, přesto s výbornou dostupností města Hlinsko. Ideální volba pro ty, kteří hledají rovnováhu mezi moderním komfortem a venkovským klidem.

Dům je ihned k nastěhování – ozvěte se mi a rád vás provedu osobní prohlídkou! Pro komunikaci uvádějte evidenční číslo zakázky N116447.

Lokalita

Okres

Obec

Ulice

Informace o nemovitosti

Stav

Realizováno

Typ smlouvy

Prodej

Typ nemovitosti

Dům

Další informace

Typ

Rodinný

Obytná plocha

200 m2

Plocha pozemku

321

Velikost

4 pokoje

Stav objektu

Novostavba

Stavba

Cihlová

Typ domu

Patrový

Energetická náročnost budovy

G - Mimořádně nehospodárná

Navigovat k nemovitosti Navigovat k nemovitosti

Máte zájem o tuto nemovitost?

Kontaktujte mě a domluvme se na prohlídce

Dejte nám vědět, s čím vám můžeme pomoct

Osobně s vámi projdeme každý detail

Preferovaný den prohlídky

Preferovaný čas prohlídky

Nejpozději do 24 hodin se ozveme nazpátek.

O vaše data je u nás postaráno. Přečtěte si naše podmínky pro ochranu os. údajů.

Děkujeme za váš zájem

Vaše informace jsme přijali a brzy se vám ozveme.

Váš požadavek byl úspěšně odeslán

Dejte nám vědět, s čím vám můžeme pomoct

Osobně s vámi projdeme každý detail

Podobné nemovitosti v naší nabídce

Mohlo by vás také zaujmout

Realizováno
Realizováno
Komplexní právní servis

Komplexní právní servis

Realitní transakce vyžadují precizní právní zajištění, aby byl obchod bezpečný a bez komplikací. S NEXT Reality Group získáte kompletní právní servis, včetně smluvní dokumentace a advokátní úschovy, abyste měli jistotu, že je váš prodej či koupě v naprostém pořádku.

Česká firma

Česká firma

Jsme ryze česká společnost, která zná lokální trh do posledního detailu. Díky tomu rozumíme specifikům českého realitního prostředí a dokážeme klientům nabídnout služby šité na míru jejich potřebám.

Tradice od roku 2006

Tradice od roku 2006

Za téměř dvě dekády působení na trhu jsme pomohli tisícům klientů najít ideální bydlení nebo úspěšně prodat jejich nemovitosti. Dlouholetá zkušenost a stabilita společnosti jsou zárukou spolehlivosti a profesionálního přístupu.

Inzerce nemovitostí až na 100 serverech

Inzerce nemovitostí až na 100 serverech

Čím větší dosah, tím rychlejší prodej za nejlepší cenu. Vaši nemovitost inzerujeme na nejdůležitějších realitních portálech, což zajišťuje maximální viditelnost a oslovuje široké spektrum potenciálních kupců.

Moderní marketing

Moderní marketing

Využíváme efektivní online kampaně, sociální sítě i cílenou reklamu, abychom vaši nemovitost dostali do povědomí správných lidí. Díky tomu se prodejní proces zrychlí a vy máte jistotu, že se vaše nabídka neztratí v záplavě ostatních inzerátů.

Nadstandardní prezentace nemovitostí

Nadstandardní prezentace nemovitostí

Profesionální fotografie, video prohlídky, dronové záběry nebo 3D virtuální prohlídky – to vše dává vaší nemovitosti konkurenční výhodu. Perfektní vizuální prezentace přitahuje více zájemců a zvyšuje šanci na rychlý a výhodný prodej.

Odbornost a profesionalita

Odbornost a profesionalita

Každý obchod je pro nás závazkem k maximální kvalitě a důslednosti. Naši makléři pracují s aktuálními daty z trhu, aby vám poskytli přesné ocenění nemovitosti i strategii prodeje, která povede k optimálnímu výsledku.

Certifikovaní realitní makléři

Certifikovaní realitní makléři

Váš obchod povedou odborníci, kteří prošli certifikacemi a pravidelným školením v oblasti realitního práva, financí i vyjednávání. To vám dává jistotu, že spolupracujete s profesionály, kteří hájí vaše zájmy a dovedou vás k úspěšnému obchodu.