Zpět Zpět na výpis nemovitostí

Prodej bytu 3+kk 75 m², Nechanice-Lubno

Stav

Volný

Typ

3+kk

Obytná plocha

75 m2

Stav objektu

Dobrý

Stavba

Cihlová

Vlastnictví

Osobní

4 290 000 Kč

Pohlídejte si cenu této nemovitosti Pohlídejte si cenu této nemovitosti

Sledovat dostupnost

Upozornění

Pohlídejte si změny u této nemovitosti

Dáme vám vědět, ať už se změní cena nebo stav nemovitosti.

Upozornění

O vaše data je u nás postaráno. Přečtěte si naše podmínky pro ochranu os. údajů.

Kalkulačka financování Kalkulačka financování

Spočítejte si, na kolik vás vyjde hypotéka

Spočítejte si, na kolik vás vyjde hypotéka

Spočítejte si, na kolik vás vyjde hypotéka

Nějaký zajímavý podnadpis

Více o této nemovitosti

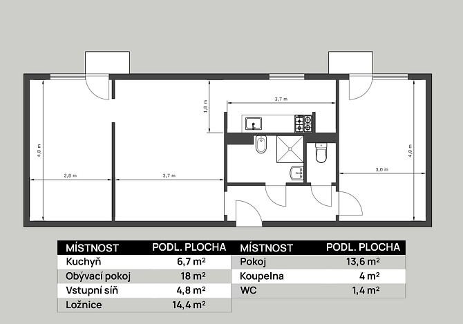
Nabízíme k prodeji bytovou jednotku 3+kk o celkové ploše 75 m² s dvěma balkony, situovanou v klidné části obce Lubno

Dispozice bytu: obývací pokoj s kuchyňským koutem, dva samostatné pokoje, předsíň, spíž, koupelna a samostatné WC. Velkým benefitem jsou dva balkony (3,32 m²) a také dva sklepy, které poskytují dostatek úložného prostoru.

Byt se nachází ve 2. nadzemním podlaží zděného bytového domu z roku 1974 bez výtahu. V 1. podzemním podlaží jsou k dispozici dva sklepy přímo k bytu, dále společná kolárna, kočárkárna, sušárna a technické zázemí. Objekt je napojen na elektřinu, veřejný vodovod, kanalizaci i plyn.
Vytápění i ohřev vody zajišťuje elektrokotel. Kuchyň je ve standardním provedení. Koupelna a toaleta jsou po rekonstrukci. Byt je v udržovaném stavu – ihned obyvatelný, zároveň nabízí možnost drobných úprav dle vlastních představ, ty ale jistě nejsou nutností. K bytu je možné dlouhodobě pronajmout zahrádku od obce.

Lokalita nabízí příjemné venkovské bydlení s dobrou dostupností – do centra Hradce Králové se dostanete přibližně za 15 minut, v obci je autobusové spojení. Ve vedlejší obci je veškerá občanská vybavenost.

Ozvěte se mi a domluvíme si prohlídku! Pro komunikaci uvadejte evidencni cislo zakazky N116228.

Lokalita

Ulice

Informace o nemovitosti

Stav

Volný

Typ smlouvy

Prodej

Typ nemovitosti

Byt

Další informace

Typ

3+kk

Obytná plocha

75 m2

Stav objektu

Dobrý

Stavba

Cihlová

Vlastnictví

Osobní

Energetická náročnost budovy

G - Mimořádně nehospodárná

Balkón

Ano

Navigovat k nemovitosti Navigovat k nemovitosti

Máte zájem o tuto nemovitost?

Kontaktujte mě a domluvme se na prohlídce

Dejte nám vědět, s čím vám můžeme pomoct

Osobně s vámi projdeme každý detail

Preferovaný den prohlídky

Preferovaný čas prohlídky

Nejpozději do 24 hodin se ozveme nazpátek.

O vaše data je u nás postaráno. Přečtěte si naše podmínky pro ochranu os. údajů.

Děkujeme za váš zájem

Vaše informace jsme přijali a brzy se vám ozveme.

Váš požadavek byl úspěšně odeslán

Dejte nám vědět, s čím vám můžeme pomoct

Osobně s vámi projdeme každý detail

Podobné nemovitosti v naší nabídce

Mohlo by vás také zaujmout

Volný
Detail nemovitosti
Komplexní právní servis

Komplexní právní servis

Realitní transakce vyžadují precizní právní zajištění, aby byl obchod bezpečný a bez komplikací. S NEXT Reality Group získáte kompletní právní servis, včetně smluvní dokumentace a advokátní úschovy, abyste měli jistotu, že je váš prodej či koupě v naprostém pořádku.

Česká firma

Česká firma

Jsme ryze česká společnost, která zná lokální trh do posledního detailu. Díky tomu rozumíme specifikům českého realitního prostředí a dokážeme klientům nabídnout služby šité na míru jejich potřebám.

Tradice od roku 2006

Tradice od roku 2006

Za téměř dvě dekády působení na trhu jsme pomohli tisícům klientů najít ideální bydlení nebo úspěšně prodat jejich nemovitosti. Dlouholetá zkušenost a stabilita společnosti jsou zárukou spolehlivosti a profesionálního přístupu.

Inzerce nemovitostí až na 100 serverech

Inzerce nemovitostí až na 100 serverech

Čím větší dosah, tím rychlejší prodej za nejlepší cenu. Vaši nemovitost inzerujeme na nejdůležitějších realitních portálech, což zajišťuje maximální viditelnost a oslovuje široké spektrum potenciálních kupců.

Moderní marketing

Moderní marketing

Využíváme efektivní online kampaně, sociální sítě i cílenou reklamu, abychom vaši nemovitost dostali do povědomí správných lidí. Díky tomu se prodejní proces zrychlí a vy máte jistotu, že se vaše nabídka neztratí v záplavě ostatních inzerátů.

Nadstandardní prezentace nemovitostí

Nadstandardní prezentace nemovitostí

Profesionální fotografie, video prohlídky, dronové záběry nebo 3D virtuální prohlídky – to vše dává vaší nemovitosti konkurenční výhodu. Perfektní vizuální prezentace přitahuje více zájemců a zvyšuje šanci na rychlý a výhodný prodej.

Odbornost a profesionalita

Odbornost a profesionalita

Každý obchod je pro nás závazkem k maximální kvalitě a důslednosti. Naši makléři pracují s aktuálními daty z trhu, aby vám poskytli přesné ocenění nemovitosti i strategii prodeje, která povede k optimálnímu výsledku.

Certifikovaní realitní makléři

Certifikovaní realitní makléři

Váš obchod povedou odborníci, kteří prošli certifikacemi a pravidelným školením v oblasti realitního práva, financí i vyjednávání. To vám dává jistotu, že spolupracujete s profesionály, kteří hájí vaše zájmy a dovedou vás k úspěšnému obchodu.